All
Residential
Commercial
Urban / Institutional
About
Contact
Stasis + Kappa
Architects
All
Residential
Commercial
Urban / Institutional
About
Contact

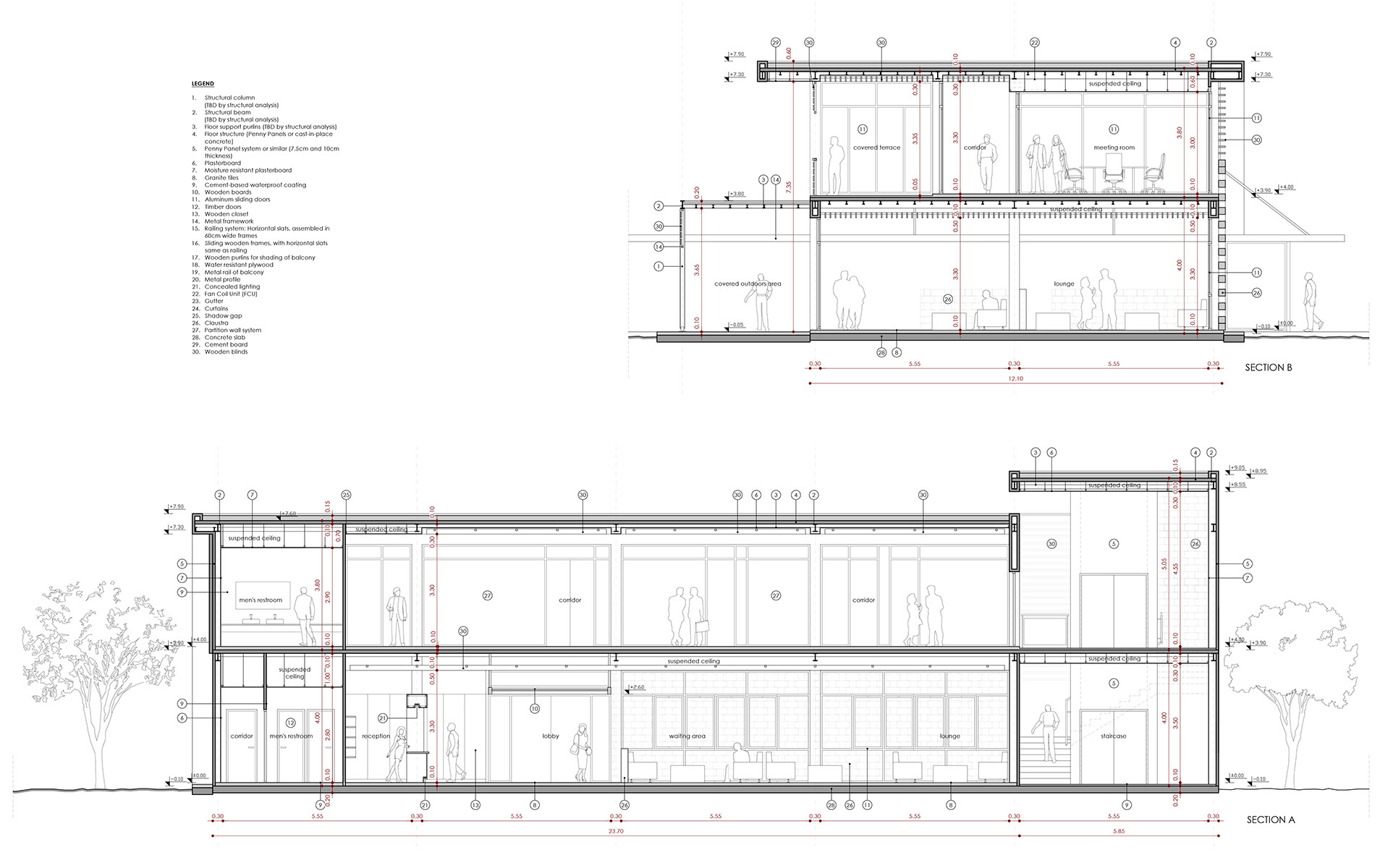
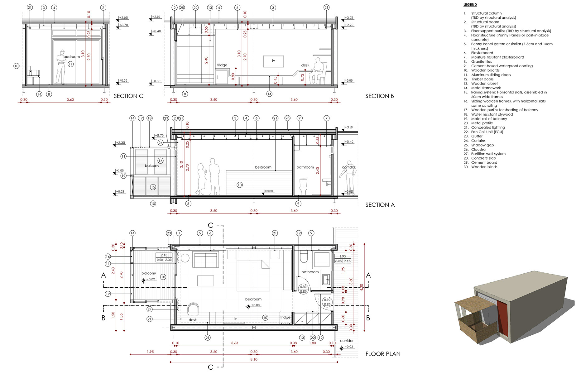
Modular Hotel Concept in Africa

Conceptual Architectural and Interior Design for New Modular Hotel Chain with Meeting Facilities in Africa - 2016

Design team: Dimitris Stasis, Arsinoe Kappa, Panos Tourlas, Julie Psallida, Michalis Anastasiadis