All
Residential
Commercial
Urban / Institutional
About
Contact
Stasis + Kappa
Architects
All
Residential
Commercial
Urban / Institutional
About
Contact

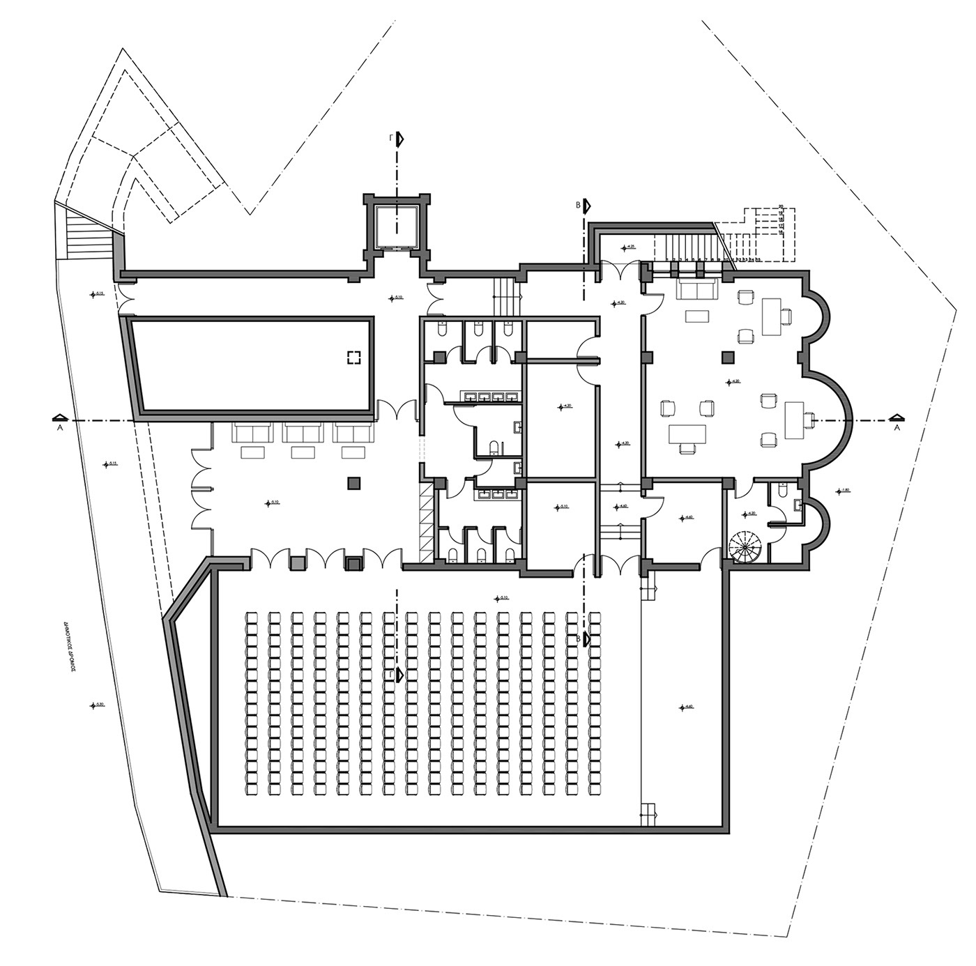
New Church in Peloponissos

Architectural design of a New Christian Orthodox Church and multi-purpose hall in Dimitsana - 2010-2018

Design team: Dimitris Stasis, Arsinoe Kappa