All
Residential
Commercial
Urban / Institutional
About
Contact
Stasis + Kappa
Architects
All
Residential
Commercial
Urban / Institutional
About
Contact
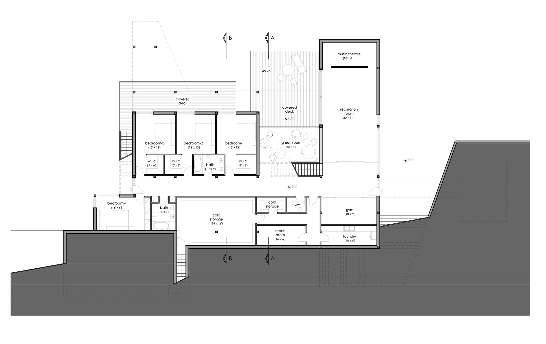
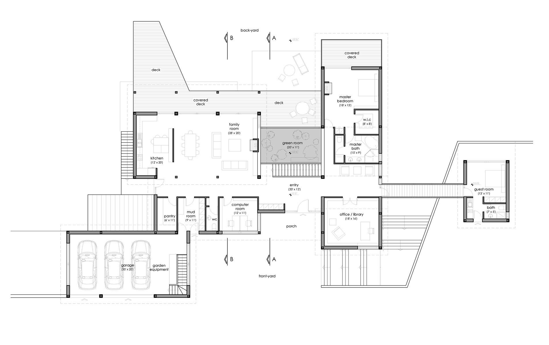
Residence in Canada
Preliminary architectural design for a two-story residence with interior greenhouse in Canada - 2008
Design team: Arsinoe Kappa, Julie Psallida, Dimitris Stasis
Lower Level Plan
Upper Level Plan